软件产品
发密科工业集成技术软件

工业集成技术软件是基于工业智能制造需求为核心、快速对机电产品原型进行系统设计仿真验证并基于用户所设计的原理图生成BOM表实现对物料的管控。工业集成技术软件也兼顾教学需求,通过自定义库、微视频录制等功能来满足教学资源的整合与分享。

工业集成技术软件集成了气动、液压、电工、HMI、3D编辑、数学方框图、机械传动机构、传感器、数字电路、PLC梯形图、SFC等多学科一体的集成软件。通过工业集成技术软件实现对各个学科进行系统原理图的设计、并且不同学科设计原理图变量之间可以进行相互的交叉应用,构建一个机电一体化最小系统,形成以创新需求到机械3D设计、电气原理图设计、气动液压设计、PLC程序设计并行的协作设计。

image.png

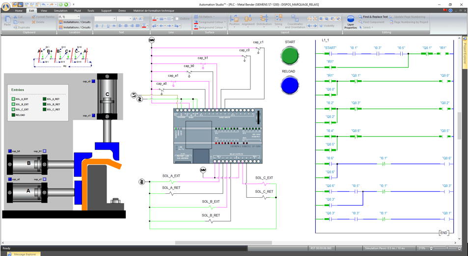
PLC自定义库

创建该库的目的是使受训人员能够实际连接PLC(Allen Bradley,Eaton,Koyo,LS Electric,三菱,欧姆龙,西门子等),编写梯形逻辑并运行仿真以查看正在触发的输入和输出根据他们的梯形图在PLC上。

image.png


可再生能源定制库

新的可再生能源库由插图组件组成。它使您能够创建和模拟具有真实应用中的相似组件的电路。一些组件甚至在仿真过程中具有动画效果,从而为培训活动创造了最佳体验。

image.png


电气库

电气元器件主要按照线路和连接段子、连接器、电缆、辅助电路组件、主电路组件、测量仪器、有源和无源组件进行分类。在辅助电路组件里面包括了各种的熔断丝,保护继电器、开发、继电器接点、传感器(包括了电位传感器、增量编码器、绝对编码器、速度开关、换向器、螺线管、接触器线圈、继电器线圈、信号设备里面各种指示灯以及各种的信号装置、PLC组件;


image.png

image.png

新半导体器件

新的半导体组件已添加到电子技术库中,例如:

双极结型晶体管(BJT)

结型场效应晶体管(JFET)

金属氧化物半导体场效应晶体管(MOSFET)

晶闸管

已经引入了晶闸管,双极晶体管和场效应晶体管。晶闸管可以通过变量或外部电路进行控制,并且晶体管已被设计为以开关和放大模式工作。

image.png




点击>>>工业集成技术软件发密科Automation Studio使用申请